物件詳細 一戸建 青森市
details一戸建
情報更新日:2026-05-18
ハシモトホーム様施工住宅です! 太陽光発電システムの付いた5LDK! ガレージ付き(2台可)で愛車も安心・安全!
- 所在地
- 青森県 青森市 浪岡女鹿沢平野
- 価格
- 2,380万円
- 間取り
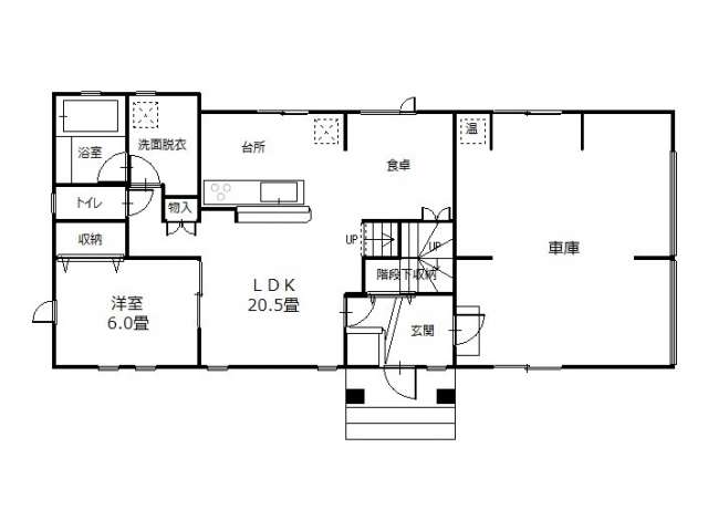
- 5LDK
- 築年数
- 平成25年2月
- 建物延面積
- 157.31㎡
- 敷地面積
- 305.8㎡ (公簿)
本物件の内容や画像等は全て現況優先となります。
各画像は参考図となります。
| 交通機関 |
「松枝」バス停徒歩約7分(約500m) JR奥羽本線 浪岡駅徒歩約23分(約1835m) |
||
|---|---|---|---|
| 学区 | 女鹿沢小学校(1.32km) | ||
| 詳細間取 | 5LDK (1階:洋6帖×1、2階:洋6帖×3、2階:洋4.5帖×1、1階:LDK20.5帖) | ||
| 周辺施設 | 国立病院機構 青森病院:1265m、いとく 浪岡店:2165m | ||
| 周辺環境 | その他費用 | ||
| 総戸数 | 建物構造 | 木造 | |
| 築年月 | 平成25年2月 | 主要採光方向 | 南 |
| 駐車場 | 敷地内 可 | 地勢 | 傾斜地 |
| 駐車場複数台 | 可4台まで | 土地権利 | 所有権 |
| 用途地域 | 第一種住居 | 国土法届 | 不要 |
| 取引態様 | 仲介 | 現況 | 空家 |
| 引渡 | 他 (相談) | 建ぺい率/容積率 | 60% / 200% |
| 地目 | 宅地 | 都市計画 | 非線引 |
| セットバック | 無 | 接道状況 | 一方(公道・東側・間口15m・幅員6.4m) |
| 私道負担 | ─ / ─ | 建築確認番号 | H24確認建セ弘 第25号 |
| 法令上の制限 | 景観法(青森市景観計画) 都市再生特別措置法(青森市立地適正化計画/居住誘導区域外) 盛土規制法(宅地造成等工事規制区域) |
||
| 設備 | バス(有 シャワー有 ) トイレ(洋式 独立 水洗 暖房便座 洗浄機能付) 上水道設備(公営) 下水道設備 洗面化粧台(独立)(シャワー付) IHヒーター(3口) TV付インターホン エアコン 蓄熱式暖房器 オール電化 下駄箱 システムキッチン 二重サッシ 網戸 照明器具 電話配線設備 TVアンテナ 車庫 クローゼット | ||
| 備考 | 現況のままで引き渡しとなります(契約不適合責任免責)。 一部の照明器具がございません(1階/食卓・洋室6帖、2階/洋室6帖・洋室6帖)。 ※同業他社による客付け可 | ||
| 取扱業者 |
㈲北翔宅建 青森県知事免許(5)第3130号 青森県青森市浪岡大字浪岡字若松76-27 TEL:0172-69-3513 FAX:0172-69-3512 (公社)全日本不動産協会会員 東北地区不動産公正取引協議会加盟事業者 |
||































